设计图

实景图

花园主人是一对且对花园有自己独特见解的夫妻,他们希望花园在具有功能和实用性的同时,还要具有新颖性和独特性。

在沟通和勘测完现场后,我们了解了建筑风格,空间关系,以及周边环境的优弊。

存在问题:1.地处北院,冬季西北风较大,考虑抗风性强的植物;
2. 东、西、北围墙高且立面过于单调,缺少趣味性; 3.西侧邻居廊架高出围墙部分,影响院子整体性及美观性。

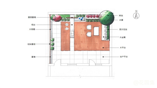
整个花园空间功能相互咬合衔接,既是过道入户空间,活动空间又是花园休闲空间。

风格上延续建筑风格,并在设计材质中融入美式元素,以简约的大线条与镶嵌体块做设计布局,结合灯光的设计布置,给花园主人良好的花园体验和时尚的视觉感官。

花园的休闲空间是一大亮点,寒武石柱水景、层次花池、木质坐凳,沙发休闲区完美结合。

材质上耐候钢板的锈蚀形态和三岳流水小品(寓意细水长流,源源不断)的自然形态形成呼应,美式风格自然流露。

相信,经过时间的沉淀,小品呈现出的色彩和质感,给花园增添独特的艺术魅力。

视线的尽头是木质与石材结合的景观墙,置一成品洗手钵,通过颜色与之呼应,相得益彰,
体现浓浓的美式风格。

一面花墙,淡淡的灰蓝色木质基调,白色的网状格栅显得格外耀眼,蔷薇欧月们正在铆足劲儿的攀爬着…..


在厨房对景的视线区域,以“圆”为概念,既是缘分的开始,也是源源不断地延续,圆洞墙与吧台结合,让此处具有很好的实用性,同时又成为厨房的景观,吧台材质延续至北墙立面,让空间层次得到丰富,视觉空间感得到放大。

休闲区背景墙采用与西墙同样材质石材,蘑菇头户外调光壁灯错落有致的安置,单调的墙面瞬间趣味十足。南天竹,杜鹃,鸢尾… …不同质感的植物组合一起,使得花园更加富有生机与活力。


设计感悟:
花园的构成元素正好体现了业主对生活方式的需求,小花园,大魅力,一个故事,一种生活
让生活之美在花园里尽情绽放。


小花园,大魅力,一个故事,一种生活,让生活之美在花园里尽情绽放。
项目结语
Ta的作品
查看更多