闲庭云镜
清人郑板桥曾云:“吾毕生之愿,欲筑一土墙院子,门内多栽竹树花草,清晨日尚未出,望东海一片红霞,薄暮斜阳满树,立院中高处,俱见烟水平桥。”别墅业主有着高尚的艺术鉴赏能力和情趣爱好,不仅注重花园的精细品质,更喜欢院子所带来的轻松惬意的生活。
标签:
设计图

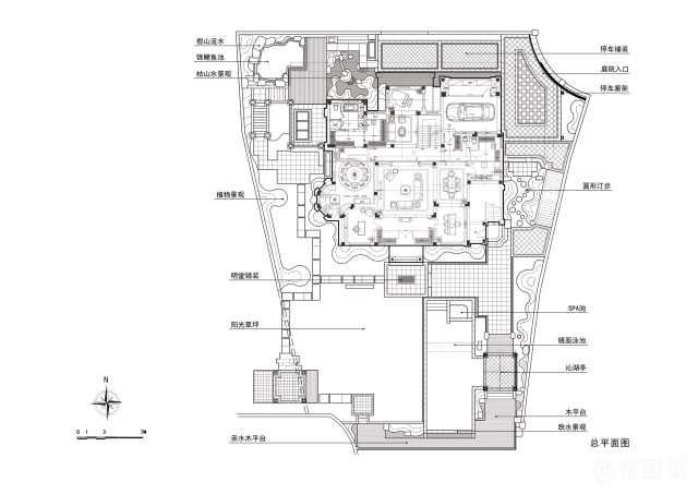
通过现场的勘探,花园前后有三米多高差,上下花园不便;花园左右两侧紧接邻居花园,私密性较差;后花园临湖,有着独有的地理优势。在别墅庭院设计中结合建筑本身风格,打造精致庭院景观与休闲空间为一体的生活场所。
实景图

庭院入户区采用弧形的庭院大门展现别墅包容性的气质,门前种植高大的造型罗汉松更是增强庭院入口的气场。前院多个停车位满足停车功能需求的同时,以精美的植物景观小品营造简洁精致的入户接纳功能。



假山鱼池区以自然乾山水景观与假山锦鲤鱼池组成。天气爽朗时,别墅主人临水而坐,沐浴温暖阳光,一面欣赏着乾山水的禅意景观,一面感受自然流水魅力,耳畔倾听清脆流水声,陶醉于一方美景中。




南面阳光草坪与镜面泳池相组合形成宽敞开阔的活动空间,泳池、湖景、天空相接水天一色,在视线上融为一体,“晴川夕照”太平景象春风里,处处和薰万物熙。茶亭四面通透,临于泳池边,坐在亭内悠然泡上一杯清茶,享受惬意的生活。下沉亲水木平台与湖水相接,和景相依。泳池叠水景观增添了亲水的趣味性。



花园两侧设置了罗马柱楼梯,将花园前后院接连相通。东面罗马柱楼梯拾级而下,入眼前方为精致的植物造景,楼梯墙面采用马赛克壁画,即增添视觉景观效果,又减少高墙带来的压迫感。建筑的南面前种植着精品造型树,庄严肃穆。从建筑的客厅、书房望向花园,一框一景,一窗一画,皆体现了生活的典雅情趣。














到沿着自然石材的小径一路漫行,沐浴阳光,欣赏满园景色,园内景石、花木、绿荫相互簇拥下呈现出生态自然、宁静秀丽的雅朴风景。

项目结语
Ta的作品
查看更多